Skip to main content

Thank You for Joining Us


Thank you to the working group members who participated in the Theme #1 Working Session for the Roselawn Neighborhood Plan.

This meeting focused on the future of the Business District — including making it safer and easier to walk, supporting local businesses, and improving key sites and public spaces.

We also want to thank the city departments and partner organizations who joined the session and helped answer questions, share resources, and support our discussion.

  • City of Cincinnati Department of Transportation and Engineering (DOTE)
    Check out DOTE’s resource guide here: DOTE Cheat Sheet
  • Cincinnati Department of Community and Economic Development (DCED)
  • Cincinnati Parks (Planning & Design + Urban Forestry)
  • Cincinnati Metro
  • Invest in Neighborhoods

Get to know these neighborhood partners a little more: Reference Handout



What We Discussed


Participants worked in small groups to share ideas and identify potential projects.

We focused on three main topics:

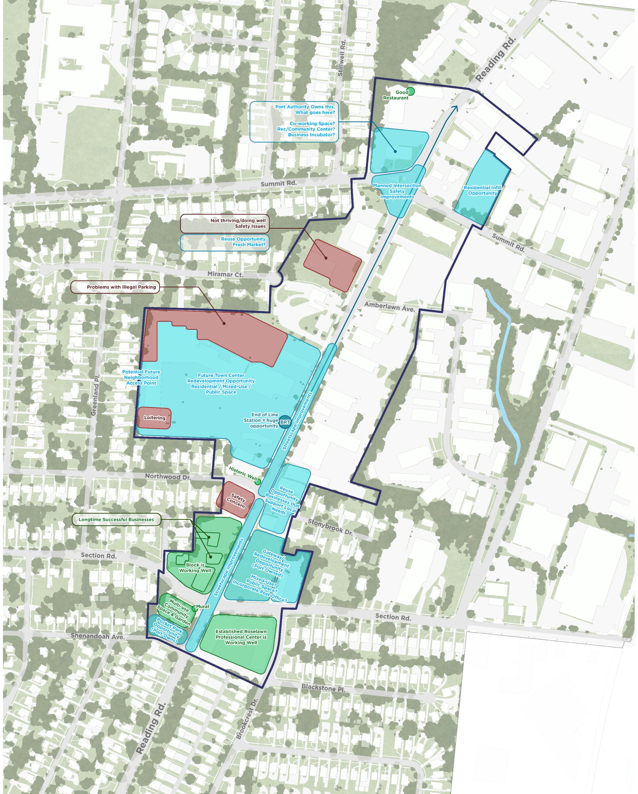
Summary Map of Observations

Summary Map of Observations

Working Group's Project Ideas


Each group was given a packet of project examples, "conversations starters", and inspirational images to get the discussion going, which you can view here: Discussion Packet

Here are the ideas that everyone came up with:

Streets, Sidewalks & Neighborhood Feel Projects


To make Roselawn’s streets more comfortable, safe, and inviting, the group discussed:

  • Add more trees and landscaping to calm traffic, provide shade, and improve the look of the corridor
  • Create streetscape guidelines so future improvements—like lighting, sidewalks, and street furniture—feel consistent and reflect the neighborhood’s identity
  • Improve sidewalk connections between neighborhoods and the business district to make it easier to walk around
  • Test a “pilot block” between Section Road and the BRT stop to show what improvements could look like and build momentum

Local Businesses & Jobs Projects


Ideas focused on supporting local businesses and bringing more activity to the corridor:

  • Create a vision for a “town center” with a mix of uses and destinations
  • Develop guidelines for new development to ensure projects support current residents and businesses
  • Encourage pop-up shops and temporary uses to activate vacant storefronts and support new entrepreneurs
  • Promote housing above businesses to bring more people and activity to the area
  • Offer business support programs, such as classes, mentorship, and financial literacy training
  • Launch a façade improvement program to improve storefront appearance
  • Host events and programming to bring people to the corridor
  • Start an “Adopt-a-Block” program where businesses help maintain and improve nearby spaces

Buildings, Vacant Lots & Neighborhood Entrances Projects


The group discussed ways to reuse vacant spaces and improve key locations:

  • Rehabilitate vacant or underused commercial buildings to bring them back into use and support local needs
  • Activate Reading & Section Road with temporary uses, events, or community amenities as a quick win
  • Improve neighborhood entrances with beautification and possibly a garden or green space hub
  • Create a mixed-use community hub with restaurants, recreation, and gathering space for all ages
  • Activate the Valley Shopping Center with pop-ups, services, and new uses
  • Develop key intersections (Reading & Section / Reading & Summit) as mixed-use nodes with restaurants, youth programming, and gathering spaces
  • Organize neighborhood beautification efforts to improve curb appeal and build community pride

We Want Your Feedback!